Urban
+ Love Letters in Times Square
+ Downtown Brooklyn Illuminated
+ Public Realm for a Hospital Campus
+ Drive-Thru in Downtown Brooklyn
+ Hudson Square
+ Watchtower
Residential
+ Fort Greene Townhouse
+ Generation House
+ Mask Room
+ Belnord Kommunalka
+ Bali Surf Temple
+ Saltman
+ Honolulu ADU
+ Sterling
+ Andes
Institutional / Commercial
+ Ruth Arts Foundation
+ Ruth Arts Foundation II
+ Chinatown Community Arts Space
+ Dance Studio
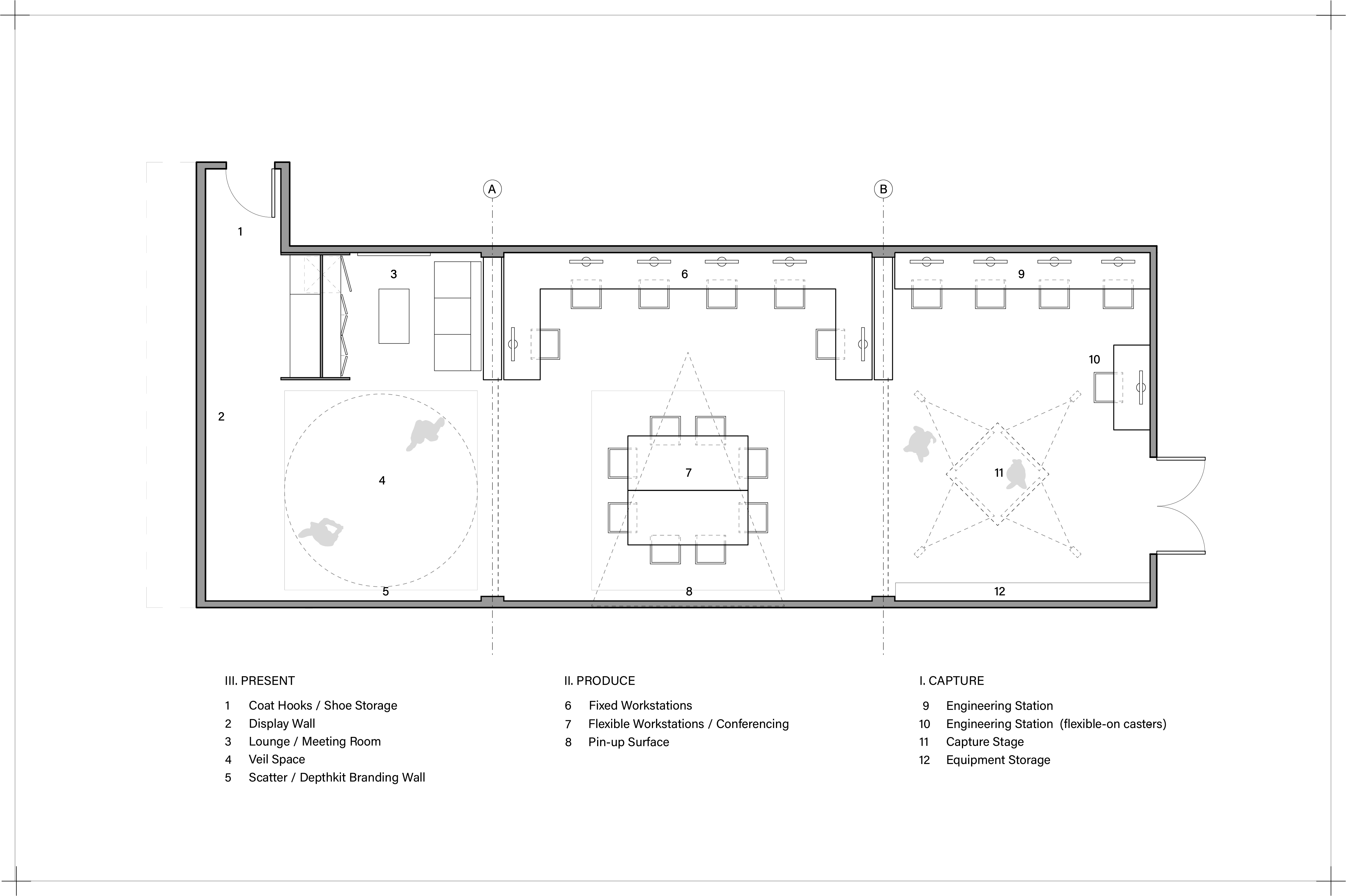
+ Scatter / Depthkit
+ Knotel
+ Chan Space
Speculative
+ One Manhattan Square
+ Countercanonical Living
+ Chinatowns
+ Without the Plan
+ Future of Work
Exhibition
+ Out-Of-Office / A-D-O
+ IAPOP
+ Barletta
Activism / Teaching
+ Dark Matter University
+ Power Tools
+ Yale School of Architecture
(Talitha Liu / Lexi Tsien)
soft-firm
BASED IN NYC
hello@soft-firm.com

































































































































