Surf Temple and Villa
Uluwatu, Bali
Uluwatu, Bali

Saltmans
Craryville, NY
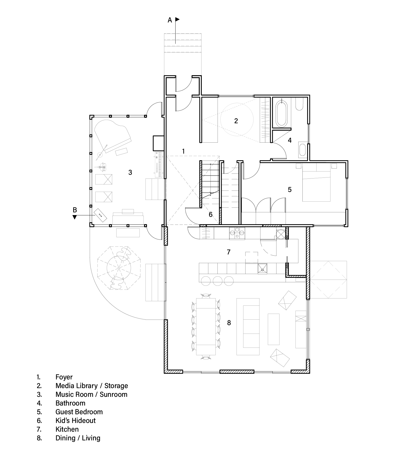
The Saltmans purchased a small plot of land in the mid 1960s with a series of buildings dotting the landscape. The relationship between owner and builder spans nearly three generations, allowing for a construction method based on loyalty, trust, and adaptation over time.
Soft-Firm designed a second-story addition and expansion to the main residence to accomodate a new flexible and intergenerational coliving arrangement which was formed and sustained throughout the pandemic. The family prioritized nooks, crannies, and hide-outs to allow for a multiplicity of auditory and visual needs, for two musicians, grandparents, and their child with special needs.
The vernacular A-frame house is reinterpreted into a new primitive.
The cathedral-like roofline is calibrated with program to give a feeling of expansiveness to the sleeping areas on the second floor. A double height space allows for a writing nook and play room to overlook the entrance foyer.
General Contractor: Mike Cottini
Craryville, NY
The Saltmans purchased a small plot of land in the mid 1960s with a series of buildings dotting the landscape. The relationship between owner and builder spans nearly three generations, allowing for a construction method based on loyalty, trust, and adaptation over time.
Soft-Firm designed a second-story addition and expansion to the main residence to accomodate a new flexible and intergenerational coliving arrangement which was formed and sustained throughout the pandemic. The family prioritized nooks, crannies, and hide-outs to allow for a multiplicity of auditory and visual needs, for two musicians, grandparents, and their child with special needs.
The vernacular A-frame house is reinterpreted into a new primitive.
The cathedral-like roofline is calibrated with program to give a feeling of expansiveness to the sleeping areas on the second floor. A double height space allows for a writing nook and play room to overlook the entrance foyer.
General Contractor: Mike Cottini

















Generation House
Brooklyn, NY
An intergenerational coinvestment to foster a model for intergenerational living; for an elderly couple, designer / architect, and a family. Surgical and minimal interventions bring functionality to three dwellings while carefully respecting and restoring historical details. Taking cues from 2001 Space Odyssey, Donald Judd, and the Lion Witch and the Wardrobe, various color blocks can be repositioned and reconfigured. Material contrasts between filagreed plaster and steel, reclaimed douglas fir and reconstituted foam, are meant to elevate each other.
+ Design: Lexi Tsien
+ General Contractor: Preservation Works
+ Steelwork: 618 Design
+ Landscape Consultant: Nishiel Patel Design
Brooklyn, NY
An intergenerational coinvestment to foster a model for intergenerational living; for an elderly couple, designer / architect, and a family. Surgical and minimal interventions bring functionality to three dwellings while carefully respecting and restoring historical details. Taking cues from 2001 Space Odyssey, Donald Judd, and the Lion Witch and the Wardrobe, various color blocks can be repositioned and reconfigured. Material contrasts between filagreed plaster and steel, reclaimed douglas fir and reconstituted foam, are meant to elevate each other.
+ Design: Lexi Tsien
+ General Contractor: Preservation Works
+ Steelwork: 618 Design
+ Landscape Consultant: Nishiel Patel Design












































Bussey Hollow
Andes, NY
A flexible recreation room for an artistic couple in Andes New York. This table can be reconfigured for ping pong, dinner, and as a very long skinny table.
Andes, NY
A flexible recreation room for an artistic couple in Andes New York. This table can be reconfigured for ping pong, dinner, and as a very long skinny table.


Sterling Place,
Brooklyn, NY
Brooklyn, NY

